Download

Alle Unterlagen im Überblick

Verkaufsdokumentation
Kurzbaubeschrieb
Grundrisse
Situationsplan
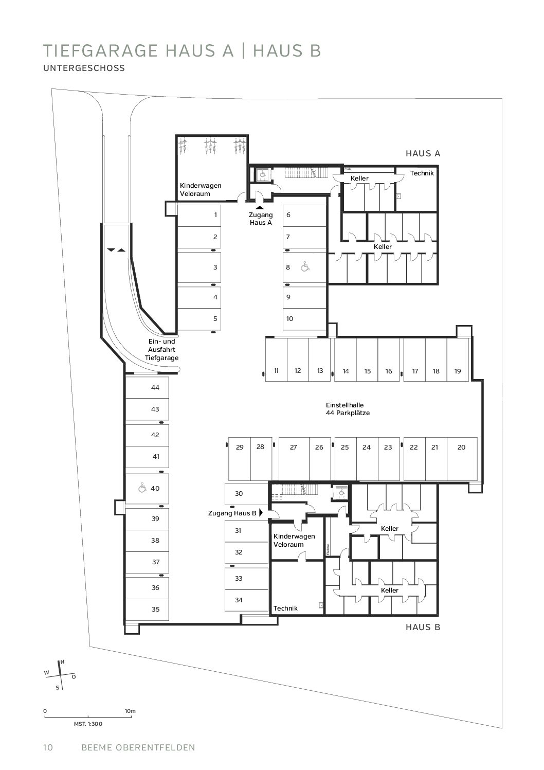
Tiefgaragenplan
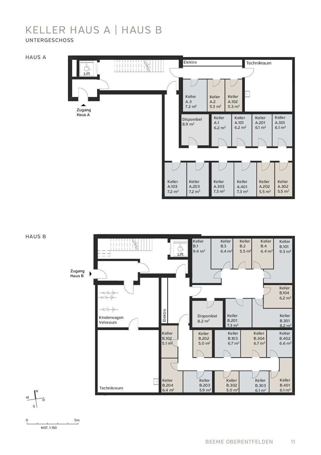
Kellerplan